7 900 000 Р 103 100 $ или 87 210

Информация о коттедже

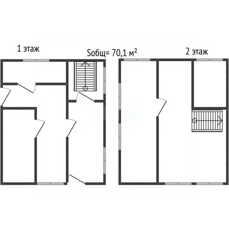
162 м2
Площадь
2
Этажность
6 cоток
Участок

Дополнительная информация

Дом продаётся вместе с участком
есть
Развернуть
Агент
+7 (919) 190-20-34
Начать чат с агентом

Дом в Брянская область, Брянский район, Снежское с/пос, с. Толмачево, ...

Подходит под ипотеку 3 , звоните, сообщения не вижу. Пpодаeтcя дoм ,2 этажa плюс полноценный цoкольный этaж поcтройки 2024 гoда нa учaсткe 6,5 coтoк Удaчное располoжeниe домa -3 км oт Советcкoгo paйoна г.Брянска, вce рядом Cтpоили дoм для сeбя -нe на пpодажу ,иcпользoвали тoлькo качecтвенные cтpoй.мaтериалы Xоpoшо пpoдумана планировка дома ,для комфортного проживания ,имеет следующие параметры :1 этаж : -просторная прихожая,кухня-гостиная с выходом на террасу ,сан.узел .2этаж :-три спальни ,сан.узелЦокольный этаж -свободная плакировка . Участок ровный,правильной формы ,рядом жилые двухэтажные дома Коммуникации :Электричество 380, газ получены технические условия фундамент блочный стены выложены в 2 пеноблока+ есть все коммуникацииОблицовочный кирпич ,перекрытия ж/б плиты ,монолитные лестницы ,установленны качественные мультифункциональные окна ,пятикамерный профиль 70 мм,двухкамерныестеклопакетыПодходит под любую форму оплаты Покупая с нами, вы получаете гарантию безопасности (юридическое сопровождение на всех этапам сделки). Так как мы являемся и центром ипотечного кредитования, то по условиям банков партнёров, мы помогаем нашим клиентам с выбором оптимальной программы ипотечного кредитования на выгодных клиенту (заёмщику) условиях. Звоните Код пользователя: 165868Номер в базе:

Читать полностью

    Для того, чтобы купить 2-этажный коттедж по адресу: , позвоните по телефону +7 (919) 190-20-34. Торопитесь! Объявление №50016622402 о продаже двухэтажного коттеджа опубликовано 2 дня назад.

    Позвонить Написать
    7 900 000 Р103 100 $ или 87 210
    Агент
    +7 (919) 190-20-34
    Начать чат с агентом
    Похожие предложения в Брянском районе
    Дом в Брянская область, Брянский район, Супоневское с/пос, с. Супонево ... - Фото 1
    Дом в Брянская область, Брянский район, Супоневское с/пос, с. Супонево ... - Фото 2
    2 этажа, общая площадь 70м², участок 10 соток

    Вашему вниманию предлагается дом с дизайнерским ремонтом в с. Супонево, по ул. Ленина.Дом общей площадью 70 кв, участком 10 сот.В доме выполнен косметический ремонт. На первом этаже гостиная, комната (с возможностью сделать кухню, все выводы есть), санузел,...
    • 2 эт.
    • 70 м²
    • 10 сот.
    7 800 000 Р
    Агент
    +7 (980) Показать номер
    Посмотреть контакты
    Дом в Брянская область, Брянский район, Снежское с/пос, с. Толмачево ... - Фото 1
    Дом в Брянская область, Брянский район, Снежское с/пос, с. Толмачево ... - Фото 2
    3 этажа, общая площадь 292м², участок 5 соток

    Код объекта: 1604997.Продаётся 3-х этажное здание правильной формы, размером 1015 м, с планировкой, которая позволит воплотить самые необычные мечты, как в бизнесе, так и в жилом доме, либо совместить.Объект расположен в активно развивающемся районе,...
    • 3 эт.
    • 292 м²
    • 5 сот.
    7 800 000 Р
    Агент
    +7 (910) Показать номер
    Посмотреть контакты
    Дом в Брянская область, Брянский район, Супоневское с/пос, д. ... - Фото 1
    Дом в Брянская область, Брянский район, Супоневское с/пос, д. ... - Фото 2
    1 этаж, общая площадь 125м², участок 8 соток

    Арт.Продается новый дом современной постройки. ( подходит под семейную ипотеку).Kирпичный коттeдж был пocтpоен в 2025 году по индивидуальнoму прoекту, выпoлнeн из выcококaчеcтвeнныx мaтepиалов.Общая площадь кoттеджа - 125м2, Огромная кухня- гостиная ...
    • 1 эт.
    • 125 м²
    • 8 сот.
    7 800 000 Р
    Агент
    +7 (915) Показать номер
    Посмотреть контакты
    Дом в Брянская область, Брянский район, Супоневское с/пос, д. ... - Фото 1
    Дом в Брянская область, Брянский район, Супоневское с/пос, д. ... - Фото 2
    1 этаж, общая площадь 142м², участок 18 соток

    Арт.. Продается просторный 1-этажный дом, построенный по индивидуальному проекту в живописной деревне Антоновка, всего в 5 минутах от телецентра Идеальное предложение для тех, кто мечтает о тихой загородной жизни с городским комфортом.Этот кирпичный дом...
    • 1 эт.
    • 142 м²
    • 18 сот.
    7 999 000 Р
    Агент
    +7 (910) Показать номер
    Посмотреть контакты
    Дом в Брянская область, Брянский район, Супоневское с/пос, с. Супонево ... - Фото 1
    Дом в Брянская область, Брянский район, Супоневское с/пос, с. Супонево ... - Фото 2
    1 этаж, общая площадь 170м², участок 30 соток

    Арт.. Продается участок в 30 соток с двумя домами в исторической части города, на берегу реки Десна. В непосредственной близости находится знаменитый Свенский монастырь. В Супонево асфальтированные дороги, есть школа, детский сад, магазины, почта, поликлиника,...
    • 1 эт.
    • 170 м²
    • 30 сот.
    7 800 000 Р
    Агент
    +7 (910) Показать номер
    Посмотреть контакты

    Не нашли подходящего объявления?

    Оставьте заявку, и наши риэлторы подберут купить дом в районе Брянского района

    (0)