6 801 088 Р 83 040 $ или 70 810

Информация о квартире

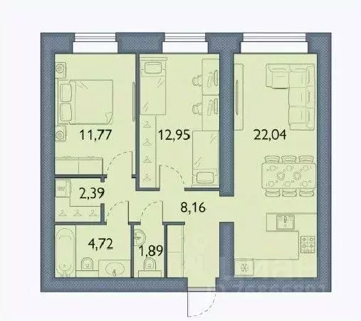
63 м2
Площадь
2
Комнаты
10
Этаж
15
Этажность

Дополнительная информация

Тип дома
кирпичный
Развернуть
Агент
БСН недвижимость (застройщик)
+7 (996) 899-20-13
Начать чат с агентом

2-к кв. Брянская область, Брянский район, пос. Мичуринский, ...

Продаётся 2-комнатная квартира в строящемся доме (Поз. 35), срок сдачи: IV-кв. 2027, общей площадью 63.92 кв.м., на 10 этаже. Новый этап в развитии ЖК Мегаполис-Парка новый строящийся дом с авторской архитектурой, максимально функциональными планировками и панорамными видами. Дом входит в состав ЖК Мегаполис-Парк , это одна из лучших новостроек Брянска расположенная в 5 минутах езды от Самолета , в 1 км. от 4-го Микрорайона. Новостройка включена в транспортную систему Советского района города Брянска, в ЖК Мегаполис-Парк имеются современные остановки общественного транспорта, расположенные на территории всего жилого комплекса. Парки и скверы в ЖК Мегаполис-Парк занимают более 10 Га,Квартира подходит под семейную ипотеку и ипотеку с господдержкой со сниженной процентной ставкой, как новое жильё от застройщика. ДОМ:Кирпичный новый дом бизнес-класса от застройщика по индивидуальному проекту.Ресепшен с консьержем.Просторные входные группы с премиальной отделкойЛифты с улучшенной отделкой кабины, частотным преобразователем и плавным ходом;Доступ на поэтажные площадки по электронным ключамКолясочные;КВАРТИРА:Система умный дом Панорамные виды на парк;Выровненные по маякам полы и стены;Высокие потолки (3м); Функциональные планировки (Большая кухня-гостиная и отдельные спальни);Климат-контроль отопления (возможность поддерживать заданную температуру в каждой комнате) Панорамные окна;Тёплые полы (ванная, с/у, прихожая, кухня, лоджия);Входная дверь премиум класса. ПРИДОМОВАЯ ТЕРРИТОРИЯ:Контроль доступа на территорию новостройки, видеонаблюдение, круглосуточная охрана;Большая парковка (с существенным превышением нормативов); Детская площадка с усовершенствованным покрытием;Многофункциональная спортивная площадка;Зоны отдыха, ландшафтный дизайн с масштабным озеленением территории;Выход в парк прямо с территории дома.ДОПОЛНИТЕЛЬНО:Отделка квартиры застройщиком с использованием качественных комплектующих (окна, двери) и дополнительной подготовкой поверхностей (выравнивание стен и пола по маякам). Доступ к камерам на территории со смартфона, автоматические ворота, умные счётчики на электричество и воду. ЖК Мегаполис-Парк , считается одной из лучших новостроек Брянска.С удовольствием организуем для Вас просмотр квартир от застройщика в удобное время проведём экскурсию в ЖК Мегаполис-Парк Подберем персональные условия для покупки.ООО специализированный застройщик Мегаполис-Строй

Читать полностью
    Позвонить Написать
    6 801 088 Р83 040 $ или 70 810
    Агент
    БСН недвижимость (застройщик)
    +7 (996) 899-20-13
    Начать чат с агентом
    Похожие предложения в Мичуринском
    2-к кв. Брянская область, Брянский район, пос. Мичуринский, ... - Фото 1
    2-к кв. Брянская область, Брянский район, пос. Мичуринский, ... - Фото 2
    2-комнатная квартира, общая площадь 63м²

    Продаётся 2-комнатная квартира в строящемся доме (Поз. 35), срок сдачи: IV-кв. 2027, общей площадью 63.92 кв.м., на 15 этаже. Новый этап в развитии ЖК Мегаполис-Парка новый строящийся дом с авторской архитектурой, максимально функциональными планировками...
    • 63 м²
    • 2-ком
    • 15/15 эт.
    • кирпичный
    6 820 264 Р
    Агент
    +7 (996) Показать номер
    Посмотреть контакты
    2-к кв. Брянская область, Брянский район, пос. Мичуринский, ... - Фото 1
    2-к кв. Брянская область, Брянский район, пос. Мичуринский, ... - Фото 2
    2-комнатная квартира, общая площадь 63м²

    Квартира с видом на лес
    • 63 м²
    • 2-ком
    • 4/15 эт.
    • кирпичный
    6 706 635 Р
    Агент
    +7 (996) Показать номер
    Посмотреть контакты
    2-к кв. Брянская область, Брянский район, пос. Мичуринский, ... - Фото 1
    2-к кв. Брянская область, Брянский район, пос. Мичуринский, ... - Фото 2
    2-комнатная квартира, общая площадь 63м²

    Квартира с видом на лес
    • 63 м²
    • 2-ком
    • 14/15 эт.
    • кирпичный
    6 785 115 Р
    Агент
    +7 (996) Показать номер
    Посмотреть контакты
    2-к кв. Брянская область, Брянский район, пос. Мичуринский, ... - Фото 1
    2-к кв. Брянская область, Брянский район, пос. Мичуринский, ... - Фото 2
    2-комнатная квартира, общая площадь 66м²

    Дом входит в состав ЖК Мегаполис-Парк , расположенного в 5 минутах езды от Самолета , в 1 км. от 4-го Микрорайона. Включен в транспортную систему города, запланированы остановки маршрутных такси на территории комплекса. Предусмотрены: 3 детских сада...
    • 66 м²
    • 2-ком
    • 1/8 эт.
    • кирпичный
    6 736 084 Р
    Агент
    +7 (996) Показать номер
    Посмотреть контакты
    2-к кв. Брянская область, Брянский район, пос. Мичуринский, ... - Фото 1
    2-к кв. Брянская область, Брянский район, пос. Мичуринский, ... - Фото 2
    2-комнатная квартира, общая площадь 66м²

    Продаётся 2-комнатная квартира в строящемся доме (Поз. 22), срок сдачи: IV-кв. 2025, общей площадью 66.76 кв.м., на 5 этаже. Дом входит в состав ЖК Мегаполис-Парк , это одна из лучших новостроек Брянска расположенная в 5 минутах езды от Самолета , в...
    • 66 м²
    • 2-ком
    • 5/8 эт.
    • кирпичный
    6 849 576 Р
    Агент
    +7 (996) Показать номер
    Посмотреть контакты

    Не нашли подходящего объявления?

    Оставьте заявку, и наши риэлторы подберут квартиру в новостройке в районе Мичуринского

    (0)