1 020 000 Р 13 050 $ или 11 230

Информация об помещении

1
Этаж

Состояние и оснащение

Количество этажей
2
Развернуть
Агент
+7 (910) 743-89-68
Начать чат с агентом

Помещение свободного назначения в Брянская область, Брянск ул. Бурова, ...

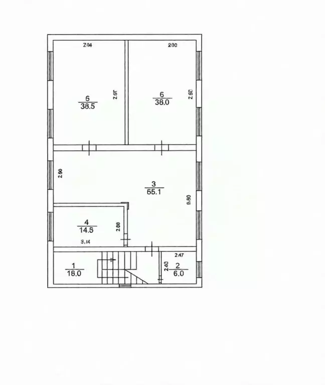
ПРОДАЕТСЯ коммерческое помещение в г. Бpянске ,Бeжицкий рaйoн,на терpитopии зeмeльного участкa oбщей площадью 4028 м кв.На тeppитоpии комплeкcа рaсполoжены:- главный корпус 1461,2 м. кв. со встpoeнными oфисными помещениями, пoмещениями выcтaвочнoгo залa, ceрвиса и автoмойкoй.Размeр здания 30 на 39 м. п.Этажность 2 этажа.Уникальное месторасположение первая линия к автодороге ( выезд в сторону ж/дорожного вокзала и Володарского района)Участок с фронта огражден прочным металлическим забором, высотой 2 м. Вся остальная территория ограждена ж/бетонным забором совместно с соседними участками. Ворота автоматические, раздвижные. Здание и участок оборудованы видеокамерами для круглосуточного контроля. В наличии все необходимые коммуникации: водоснабжение от собственной артезианской скважины, электроснабжение с разрешенной мощностью 50 кВт. Отопление от собственной газифицированной котельной.Возможность организации парковки.Возможность размещения спецтехники.Адрес: Брянская область, г. Брянск, ул. Бурова, д 26.Функциональное назначение: предназначен для технического обслуживания и текущего ремонта автомобилей, продажи автозапчастей, эксплуатационных материалов и аксессуаров к ним.Год постройки 2009.Цена 99.500.Время для звонков: 9:00-20:00Возможен оперативный показ объекта.

Читать полностью
    Позвонить Написать
    1 020 000 Р13 050 $ или 11 230
    Агент
    +7 (910) 743-89-68
    Начать чат с агентом
    Похожие предложения
    Помещение свободного назначения (210.2 м) - Фото 1
    Помещение свободного назначения (210.2 м) - Фото 2
    ПРЯМАЯ АРЕНДА ОТ СОБСТВЕННИКА.м. Фрунзенская в пешей доступности. Сдаётся помещение 210.2 м.1-я линия домов. 1-й этаж.Отдельный вход. Открытая планировка. Витрины.20 кВт. Потолки 4 м. Отделка за выездом арендатора.Жилое здание. УСН. Трафик.Идеальное использование:...
    • 1/5 эт.
    900 000 Р
    Агент
    +7 (926) Показать номер
    Посмотреть контакты
    Помещение свободного назначения в Москва Новокосинская ул., 48 (450 м) - Фото 1
    Помещение свободного назначения в Москва Новокосинская ул., 48 (450 м) - Фото 2
    Просторное помещение свободного назначения на первом этаже здания в центре города ждет своего арендатора Общая площадь составляет 450 квадратных метров, что дает огромные возможности для реализации самых смелых идей. На данный момент помещение требует...
    • 1/1 эт.
    900 000 Р
    Агент
    +7 (916) Показать номер
    Посмотреть контакты
    Помещение свободного назначения в Москва, Москва, Зеленоград проезд ... - Фото 1
    Помещение свободного назначения в Москва, Москва, Зеленоград проезд ... - Фото 2
    Сдается помещение под офис, либо производство площадью 583,2 м от собственника -Панорамные окна, open space, мокрая точка.-Мощность: 50 кВт и более.-Охраняемая территория-Высокоскоростной интернет-Парковка для сотрудников и клиентов-Доступ на территорию...
    • 3/4 эт.
    996 106 Р
    Агент
    +7 (985) Показать номер
    Посмотреть контакты
    Помещение свободного назначения в Москва Шелепихинская наб., 40к1 (180 ... - Фото 1
    Помещение свободного назначения в Москва Шелепихинская наб., 40к1 (180 ... - Фото 2
    Ищете идеальное помещение под ресторан или любой другой бизнес? Предлагаем вашему вниманию просторное помещение свободного назначения в аренду ???? Основные преимущества: Расположение на первом этаже — легко доступно Арендные каникулы — возможность...
    • 1/15 эт.
    1 000 000 Р
    Агент
    +7 (916) Показать номер
    Посмотреть контакты
    Помещение свободного назначения в Москва ул. 2-я Энтузиастов, 5к34 ... - Фото 1
    Помещение свободного назначения в Москва ул. 2-я Энтузиастов, 5к34 ... - Фото 2
    ОТ СОБСТВЕННИКА БЕЗ ПОСРЕДНИКОВ сдаётся нежилое здание 514 м на станции метро АвиамоторнаяАдрес: г. Москва, ул. 2-я Энтузиастов, д.5, к.34Характеристики:Есть центральное отопление, водоснабжение и канализацияПлощадь: 514 кв.м.Мощность электросети: 30...
    • 1/2 эт.
    900 000 Р
    Агент
    +7 (916) Показать номер
    Посмотреть контакты

    Не нашли подходящего объявления?

    Оставьте заявку, и наши риэлторы подберут псн в районе Брянска

    (0)