Россия, Брянская область, Брянск, ул. Имени А.Ф. Войстроченко, 5
135 480 Р 1 600 $ или 1 400

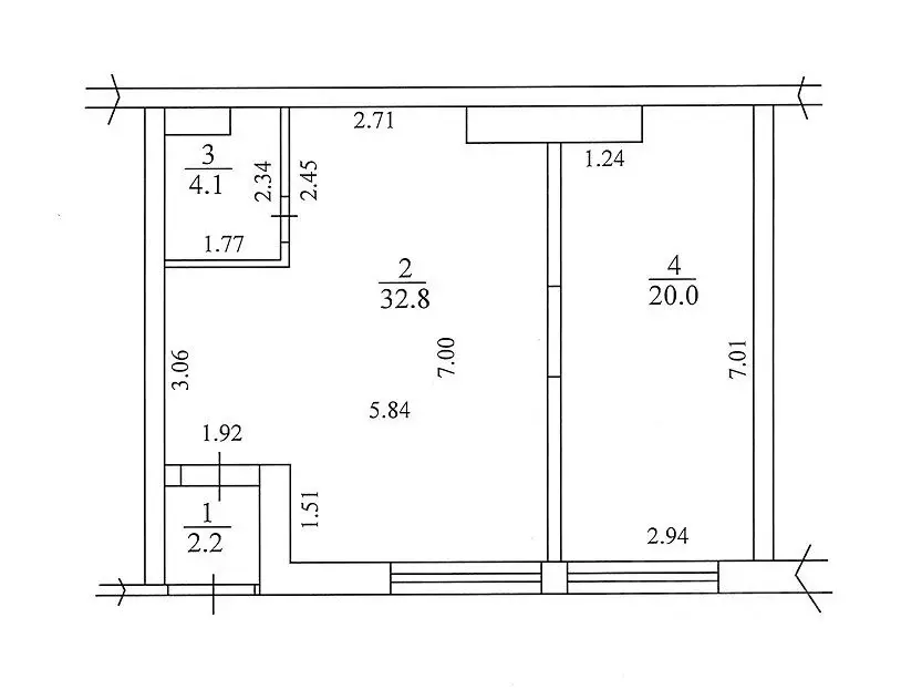
Информация об помещении

1
Этаж

Состояние и оснащение

Количество этажей
16
Развернуть
Агент
+7 (919) 291-53-83
Начать чат с агентом

Помещение свободного назначения в Брянская область, Брянск ул. Имени ...

Коммерческое помещение площадью 112,9 кв. м расположено в ЖК Центральный на улице Войстроченко, д. 5, в перспективном районе, формирующемся на территории бывшего аэропорта. Район характеризуется активной комплексной застройкой, что определяет его динамичное развитие и рост деловой активности. Помещение подходит для размещения объектов детской направленности, кофейни, офиса или предприятий иного свободного назначения. Ключевым преимуществом локации является развивающаяся инфраструктура, включая уже функционирующий детский сад на смежном участке, а также близость к ключевым городским объектам. В шаговой доступности находятся государственные учреждения на улице Крахмалева, что формирует стабильный поток посетителей и создает потенциал для бизнеса, ориентированного на деловую аудиторию. Район обладает высокой транспортной доступностью и перспективами ее дальнейшего улучшения, обеспечивая удобный подъезд как на личном, так и на общественном транспорте. Близость к крупным торговым объектам гарантирует высокий трафик потенциальных клиентов. Помещение представляет собой готовое решение для запуска бизнеса в формирующемся деловом и жилом кластере с растущей покупательной способностью населения. Код пользователя: 191309Номер в базе:

Читать полностью
    Позвонить Написать
    135 480 Р1 600 $ или 1 400
    Агент
    +7 (919) 291-53-83
    Начать чат с агентом
    Похожие предложения
    Помещение свободного назначения в Брянская область, Брянск Октябрьская ... - Фото 1
    Помещение свободного назначения в Брянская область, Брянск Октябрьская ... - Фото 2
    Код объекта: 1401028.Уникальное предложение для вашего бизнеса Сдается в аренду просторное помещение свободного назначения по адресу: Брянск, Октябрьская улица, 86. Общая площадь объекта составляет 223,2 кв. м, что дает вам возможность гибко организовать...
    • 1/5 эт.
    149 000 Р
    Агент
    +7 (915) Показать номер
    Посмотреть контакты
    Помещение свободного назначения в Брянская область, Брянск просп. ... - Фото 1
    Помещение свободного назначения в Брянская область, Брянск просп. ... - Фото 2
    Ищете идеальное место для вашего бизнеса в самом сердце Советского района Брянска? Предлагаем в аренду помещение с отличным потенциалом Площадь помещения всего составляет 269.9 кв.м.Расположенное в густонаселенном районе, на главном проспекте города,...
    • 1/5 эт.
    148 445 Р
    Агент
    +7 (910) Показать номер
    Посмотреть контакты
    Помещение свободного назначения в Брянская область, Брянск Бежицкая ... - Фото 1
    Помещение свободного назначения в Брянская область, Брянск Бежицкая ... - Фото 2
    Характеристики:- 1 линия- Доступ 24/7- ХВС/ГВС- Свой санузел- Центральное отопление- С окнами- Инфраструктура: Магазины, Банки, Кафе/столовыеДополнительная информация:Комплекс строится на территории старого аэропорта, недалеко от юридического факультета...
    • 1/16 эт.
    139 500 Р
    Агент
    +7 (910) Показать номер
    Посмотреть контакты
    Помещение свободного назначения в Брянская область, Брянск ул. ... - Фото 1
    Помещение свободного назначения в Брянская область, Брянск ул. ... - Фото 2
    Аренда коммерческого помещения в центре Бежицкого района Адрес: Ул. Куйбышева, 19 — стратегически выгодное расположение прямо напротив крупного торгового центра Бум Сити , что обеспечивает постоянный приток потенциальных клиентов.Площадь помещения:...
    • 1/5 эт.
    140 000 Р
    Агент
    +7 (910) Показать номер
    Посмотреть контакты
    Помещение свободного назначения в Брянская область, Брянск ул. 22-го ... - Фото 1
    Помещение свободного назначения в Брянская область, Брянск ул. 22-го ... - Фото 2
    Ищете идеальное место для вашего бизнеса в Бежицком районе? Предлагаем в аренду просторное коммерческое помещение на первом этаже - 250 м.кв. А также в данном помещении аренда цокольного этажа площадью - 353.3 м.кв. Расположение просто находка: самый...
    • 1/1 эт.
    137 500 Р
    Агент
    +7 (910) Показать номер
    Посмотреть контакты

    Не нашли подходящего объявления?

    Оставьте заявку, и наши риэлторы подберут псн в районе Брянска

    (0)