4 500 000 Р 57 870 $ или 49 910

Информация об помещении

1
Этаж

Состояние и оснащение

Количество этажей
10
Развернуть
Агент
+7 (910) 230-86-19
Начать чат с агентом

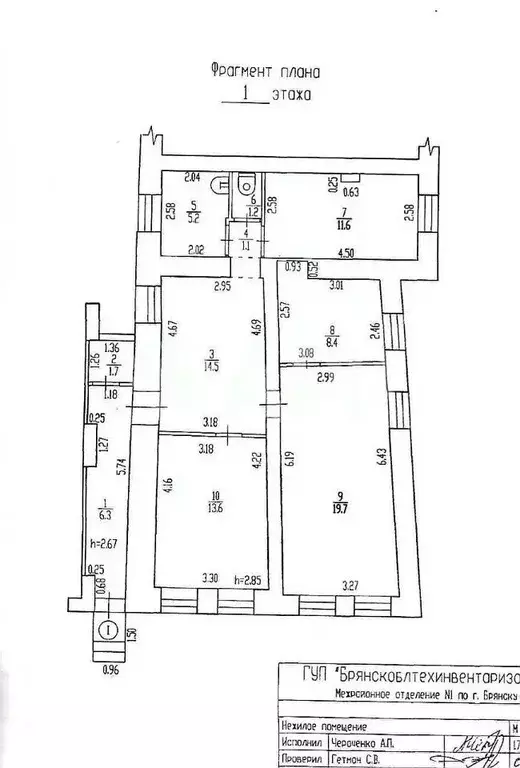
Помещение свободного назначения в Брянская область, Брянск ул. Романа ...

Продажа коммерческого помещения в Брянске Адрес: ул. Романа Брянского, 5 Площадь: 190 м Стоимость: Отличный вариант для бизнеса Просторное и светлое помещение идеальное для офиса, магазина, студии или любого другого бизнеса Все коммуникации электричество, водоснабжение, отопление, интернет, что позволяет сразу начать работу. Удобное расположение хорошая транспортная доступность, парковка рядом. Хорошая инвестиция отличное соотношение цены и качества Возможны выплаты дополнительного агентского вознаграждения в случае успешного заключения сделки. Детали и размер вознаграждения обсуждаются индивидуально. Звоните, чтобы узнать подробности и договориться о просмотре

Читать полностью
    Позвонить Написать
    4 500 000 Р57 870 $ или 49 910
    Агент
    +7 (910) 230-86-19
    Начать чат с агентом
    Похожие предложения
    Помещение свободного назначения в Брянская область, Брянск ул. ... - Фото 1
    Помещение свободного назначения в Брянская область, Брянск ул. ... - Фото 2
    Продаётся перспективное помещение свободного назначения в Брянске — готовый фундамент для вашего бизнеса Сейчас идет косметический ремонт фасадной и внутренней части помещения Отличное расположение:Ул. Калинина, 121. Высокая проходимость, рядом остановка...
    • 1/2 эт.
    4 600 000 Р
    Агент
    +7 (910) Показать номер
    Посмотреть контакты
    Помещение свободного назначения в Брянская область, Брянск ул. ... - Фото 1
    Помещение свободного назначения в Брянская область, Брянск ул. ... - Фото 2
    Продаются два помещения в цокольном этаже в центре города Ищете идеальное пространство для вашего бизнеса? У нас есть отличное предложение Продаются два коммерческих помещения площадью 105 м и 129,5 м, расположенные в цокольном этаже 6-этажного кирпичного...
    • -1/6 эт.
    4 500 000 Р
    Агент
    +7 (910) Показать номер
    Посмотреть контакты
    Помещение свободного назначения в Брянская область, Брянск ул. ... - Фото 1
    Помещение свободного назначения в Брянская область, Брянск ул. ... - Фото 2
    В продаже помещение свободного назначения. Расположено на втором этаже здания первой линии в престижном районе характеризуется высокой проходимостью и отличной транспортной доступностью. Объект полностью подготовлен для коммерческой деятельности: заведены...
    • 2/2 эт.
    4 499 000 Р
    Агент
    +7 (910) Показать номер
    Посмотреть контакты
    Помещение свободного назначения в Брянская область, Брянск ул. Молодой ... - Фото 1
    Помещение свободного назначения в Брянская область, Брянск ул. Молодой ... - Фото 2
    Продаётся коммерческое помещение 63 м в Бежицком районе Брянска Готовое решение для вашего бизнеса в перспективном районе.Адрес: ул. Молодой Гвардии, д. 8Площадь: 63 м Высота потолков, планировка, коммуникации — уточняйте при просмотре. Преимущества локации:-...
    • 1/3 эт.
    4 500 000 Р
    Агент
    +7 (910) Показать номер
    Посмотреть контакты
    Помещение свободного назначения в Брянская область, Брянск Белые ... - Фото 1
    Помещение свободного назначения в Брянская область, Брянск Белые ... - Фото 2
    Арт.. Новогодняя распродажа Успейте купить сейчас Предлагаем к покупке просторное помещение свободного назначения площадью 164,4 кв.м, расположенное по адресу: рп. Белые Берега, ул. Привокзальная, д.3, пом.1.Это отличное предложение для предпринимателей,...
    • 1/5 эт.
    4 600 000 Р
    Агент
    +7 (919) Показать номер
    Посмотреть контакты

    Не нашли подходящего объявления?

    Оставьте заявку, и наши риэлторы подберут псн в районе Брянска

    (0)