5 999 000 Р 78 160 $ или 66 450

Информация об помещении

1
Этаж

Состояние и оснащение

Количество этажей
2
Развернуть
Агент
+7 (910) 734-78-18
Начать чат с агентом

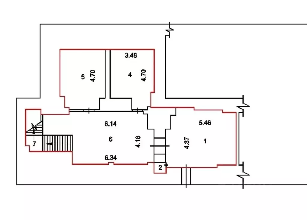
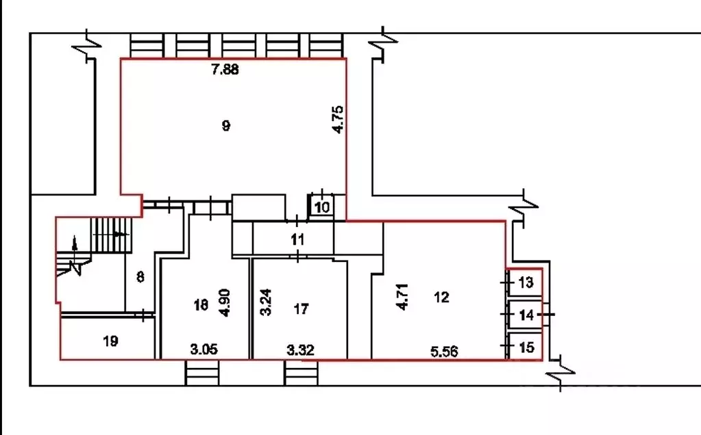
Помещение свободного назначения в Брянская область, Брянск ул. 22-го ...

Продается нежилое помещение в центре Бежицкого района в 400 метрах от БУМСити (рядом с ул. 3-го Интернационала, 22 Съезда КПСС, Куйбышева, Металлистов, Союзная) Новое кирпичное здание с закрытой территорией. Индивидуальное отопление. Высокие потолки. Отдельный выделенный участок к помещению площадью 3,5 сотки полностью огорожен забором и благоустроен. Помещение свободной планировки, общей площадью 74 м2., 2 отдельных входа. Удобная инфраструктура и развитая транспортная доступность во все районы города. Покупка этой недвижимости возможна за 1 день по программе Trade-in с зачетом вашей недвижимости.

Читать полностью
    Позвонить Написать
    5 999 000 Р78 160 $ или 66 450
    Агент
    +7 (910) 734-78-18
    Начать чат с агентом
    Похожие предложения
    Помещение свободного назначения в Брянская область, Брянск ул. ... - Фото 1
    Помещение свободного назначения в Брянская область, Брянск ул. ... - Фото 2
    Арт.Не упустите уникальную возможность В центре Советского района города Брянска предлагается к продаже коммерческое помещение с высоким потенциалом для развития бизнеса. Объект представляет собой привлекательную инвестиционную возможность благодаря своему...
    • 1/10 эт.
    6 100 000 Р
    Агент
    +7 (910) Показать номер
    Посмотреть контакты
    Помещение свободного назначения в Брянская область, Брянск ул. ... - Фото 1
    Помещение свободного назначения в Брянская область, Брянск ул. ... - Фото 2
    Продается помещение площадью 100,8 кв.м свободного назначения в цокольном (есть окна) этаже жилого дома в ЖК Речной. В помещении выполнен косметический ремонт. Помещение кабинетного типа. Можно выполнить перепланировку по вашим предпочтениям. Имеется...
    • -1/19 эт.
    5 900 000 Р
    Агент
    +7 (919) Показать номер
    Посмотреть контакты
    Помещение свободного назначения в Алтайский край, Барнаул Балтийская ... - Фото 1
    Помещение свободного назначения в Алтайский край, Барнаул Балтийская ... - Фото 2
    Продаётся отличное коммерческое помещение Преимущества расположения: Удобное расположение в густонаселённом районе с отличной транспортной доступностью. Остановки общественного транспорта рядом с помещением. Достаточное количество парковочных мест для...
    • 1/10 эт.
    5 900 000 Р
    Агент
    +7 (983) Показать номер
    Посмотреть контакты
    Помещение свободного назначения в Калужская область, Калуга ул. ... - Фото 1
    Помещение свободного назначения в Калужская область, Калуга ул. ... - Фото 2
    Арт.Продаётся коммерческое помещение по адресу: г. Калуга, ул. Чебышева, д. 12/15Площадь — 48.3 м. Помещение расположено на первом этаже, имеет удобный вход с улицы и хорошую визуальную доступность для пешеходного и автомобильного трафика.Подойдёт под:офис...
    • 1/2 эт.
    5 990 000 Р
    Агент
    +7 (980) Показать номер
    Посмотреть контакты
    Помещение свободного назначения в Кировская область, Киров ... - Фото 1
    Помещение свободного назначения в Кировская область, Киров ... - Фото 2
    **Продается отличное встроенное помещение в центре Кирова **Мы рады предложить вам уникальную возможность стать владельцем готового бизнеса в Кирове. Помещение расположено по адресу: Социалистическая ул., 7. Общая площадь составляет 99,3 кв. м и находится...
    • -1/10 эт.
    5 900 000 Р
    Агент
    +7 (912) Показать номер
    Посмотреть контакты

    Не нашли подходящего объявления?

    Оставьте заявку, и наши риэлторы подберут псн в районе Брянска

    (0)