2 600 000 Р 32 120 $ или 27 720

Информация о квартире

65 м2
Площадь
40 м2
Жилая
8 м2
Кухня
2
Комнаты
1
Этаж
2
Этажность

Дополнительная информация

Тип дома
кирпичный
Развернуть
Агент
+7 (910) 331-28-00
Начать чат с агентом

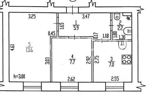
2-к кв. Брянская область, Брянск Мало-Орловская ул., 9 (65.1 м)

Продаётся 2 комнатная квартира в кирпичном доме, 1951 года постройки, высокий потолок 3м, очень большие комнаты, удобная прихожая с гардеробом, раздельный санузел, пол деревянный, окна деревянные, без балкона. Состояние самое обычное, жить можно. Колонка-автомат. Срочная продажа, все документы готовы к продаже, вся сумма в договоре, подходит под любую форму оплаты. Один взрослый собственник. Никто не прописан. Без обременений.

Читать полностью

    Для того, чтобы купить двухкомнатную квартиру по адресу: Брянск, Бежицкий, ул. Мало-Орловская, 9, позвоните по телефону +7 (910) 331-28-00. Торопитесь! Объявление №30091915057 о продаже двухкомнатной квартиры опубликовано Сегодня.

    Позвонить Написать
    2 600 000 Р32 120 $ или 27 720
    Агент
    +7 (910) 331-28-00
    Начать чат с агентом
    Похожие предложения
    1-к кв. Брянская область, Брянск Почтовая ул., 150 (37.0 м) - Фото 1
    1-к кв. Брянская область, Брянск Почтовая ул., 150 (37.0 м) - Фото 2
    1-комнатная квартира, общая площадь 37м², жилая 17м², кухня 10м²

    Арт.В продаже 1-комнатная квартира с живописным, панорамным видом на лес и озеро ул. Почтовая, д. 150 10-этаж десятиэтажного дома дом 2010 года постройки 37кв. м, кухня 9 кв. м (улучшенная планировка) окна пвх просторный сан. узел в прихожей место...
    • 37 м²
    • 1-ком
    • 10/10 эт.
    • панельный
    2 500 000 Р
    Агент
    +7 (919) Показать номер
    Посмотреть контакты
    2-к кв. Брянская область, Брянск ул. Ульянова, 121 (42.9 м) - Фото 1
    2-к кв. Брянская область, Брянск ул. Ульянова, 121 (42.9 м) - Фото 2
    2-комнатная квартира, общая площадь 42м², жилая 28м², кухня 5м²

    Арт.В продаже 2-комнатная квартира в Бежицком районе по адресу: ул.Ульянова д.121Параметры:Общая площадь- 42.9 кв.мКомната 1- 16.4 кв. мКомната 2- 11.7 кв. мО квартире:-Квартира светлая, тёплая, не угловая-Санузел раздельный-Удобная планировка-Есть гардеробная-Окна...
    • 42 м²
    • 2-ком
    • 4/5 эт.
    • панельный
    2 600 000 Р
    Агент
    +7 (919) Показать номер
    Посмотреть контакты
    3-к кв. Брянская область, Брянск ул. Камозина, 6 (58.6 м) - Фото 1
    3-к кв. Брянская область, Брянск ул. Камозина, 6 (58.6 м) - Фото 2
    3-комнатная квартира, общая площадь 58м², жилая 41м², кухня 6м²

    Арт.В продаже 3-ком квартира 58,6м2, для ремонта под себя. Локация: Центр Бежицкого р-на, ул. Камозина 6, в 3х минутах ходьбы от Линии. -Окна на обе стороны дома(распашонка)-Комфортная планировка с большой кладовой, которую можно реализовать под гардеробную....
    • 58 м²
    • 3-ком
    • 5/5 эт.
    • панельный
    2 550 000 Р
    Агент
    +7 (910) Показать номер
    Посмотреть контакты
    1-к кв. Брянская область, Брянск ул. Ульянова, 111 (26.0 м) - Фото 1
    1-к кв. Брянская область, Брянск ул. Ульянова, 111 (26.0 м) - Фото 2
    1-комнатная квартира, общая площадь 26м², жилая 13м², кухня 8м²

    Продается однокомнатная квартира в Бежицком районе по адресу Ульянова 111,в близи находятся улицы: Бурова, Камозина, 3 интернационала, Куйбышева, 22 съезда КПСС, Линейная Кирпичный дом. Квартира не углoвaя. Окна выходят на улицу. Большая парковка...
    • 26 м²
    • 1-ком
    • 3/5 эт.
    • кирпичный
    2 500 000 Р
    Агент
    +7 (980) Показать номер
    Посмотреть контакты
    2-к кв. Брянская область, Брянск ул. Ульянова, 132 (36.4 м) - Фото 1
    2-к кв. Брянская область, Брянск ул. Ульянова, 132 (36.4 м) - Фото 2
    2-комнатная квартира, общая площадь 36м², жилая 21м², кухня 7м²

    Код объекта: 1925625.Продается квартира в центре Бежицкого района.Квартира расположена на втором этаже трёхэтажного кирпичного дома. Общая площадь — 36,4 кв. м, из которых 21,3 кв. м приходится на жилую площадь, а 7 кв. м — на кухню. Изолированные комнаты...
    • 36 м²
    • 2-ком
    • 2/3 эт.
    • кирпичный
    2 650 000 Р
    Агент
    +7 (910) Показать номер
    Посмотреть контакты

    Не нашли подходящего объявления?

    Оставьте заявку, и наши риэлторы подберут квартиру в районе Брянска

    (0)