2 600 000 Р 31 990 $ или 27 600

Информация о квартире

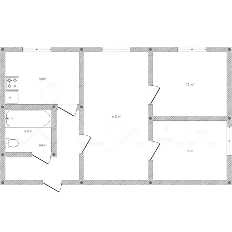
44 м2
Площадь
28 м2
Жилая
6 м2
Кухня
2
Комнаты
1
Этаж
5
Этажность
Развернуть
Агент
+7 (906) 502-38-80
Начать чат с агентом

2-комнатная квартира: Брянск, улица Абашева, 5 (44.5 м)

Арт.Продается двухкомнатная квартира на первом этаже пятиэтажного дома в Володарском районе Квартира на две стороны;Квартира имеет удобную планировку, общей площадью 44,5 квадратных метров; Комнаты изолированные;Кухня 6 кв м;с/у раздельный;есть место под гардероб. Отсутствие балкона не является недостатком, так как квартира расположена в тихом и спокойном районе, вдали от шумных улиц. Вокруг много зелени, что создает приятную обстановку для проживания. Квартира требует ремонта, что дает возможность новым владельцам реализовать свои дизайнерские идеи и создать уютное пространство по своему вкусу. В шаговой доступности находятся магазины, школа, Детский сад и остановки общественного транспорта, что делает данное предложение особенно привлекательным для семей с детьми или людей, работающих в близлежащих районах. Звоните договоримся о просмотре

Читать полностью

    Для того, чтобы купить двухкомнатную квартиру по адресу: Брянск, ул. Абашева, 5, позвоните по телефону +7 (906) 502-38-80. Торопитесь! Объявление №30091664310 о продаже двухкомнатной квартиры опубликовано 08 ноября 2025.

    Позвонить Написать
    2 600 000 Р31 990 $ или 27 600
    Агент
    +7 (906) 502-38-80
    Начать чат с агентом
    Похожие предложения
    2-к кв. Брянская область, Брянск ул. Абашева, 5 (44.5 м) - Фото 1
    2-к кв. Брянская область, Брянск ул. Абашева, 5 (44.5 м) - Фото 2
    2-комнатная квартира, общая площадь 44м², жилая 28м², кухня 6м²

    Арт.Продается двухкомнатная квартира на первом этаже пятиэтажного дома в Володарском районе Квартира на две стороны;Квартира имеет удобную планировку, общей площадью 44,5 квадратных метров; Комнаты изолированные;Кухня 6 кв м;с/у раздельный;есть место...
    • 44 м²
    • 2-ком
    • 1/5 эт.
    • кирпичный
    2 600 000 Р
    Агент
    +7 (915) Показать номер
    Посмотреть контакты
    2-к кв. Брянская область, Брянск ул. Абашева, 8 (53.0 м) - Фото 1
    2-к кв. Брянская область, Брянск ул. Абашева, 8 (53.0 м) - Фото 2
    2-комнатная квартира, общая площадь 53м², жилая 34м², кухня 8м²

    Арт.. Продается 2-комнатная квартира на ул. Абашева, 8, расположенная на 2 этаже 10-этажного панельного дома.Общая площадь квартиры составляет 53 кв.м, из которых жилая площадь - 34 кв.м, кухня - 8 кв.мЭто идеальное предложение для тех, кто ищет комфортное...
    • 53 м²
    • 2-ком
    • 2/10 эт.
    • панельный
    2 700 000 Р
    Агент
    +7 (910) Показать номер
    Посмотреть контакты
    2-к кв. Брянская область, Брянск ул. Абашева, 8 (53.5 м) - Фото 1
    2-к кв. Брянская область, Брянск ул. Абашева, 8 (53.5 м) - Фото 2
    2-комнатная квартира, общая площадь 53м², жилая 33м², кухня 7м²

    Продается двухкомнатная квартира в Володарском районе Брянска, расположенная на северной стороне дома, что обеспечивает комфортный микроклимат в любое время года — летом здесь прохладно, а зимой сохраняется тепло благодаря нарощенным радиаторам отопления....
    • 53 м²
    • 2-ком
    • 2/10 эт.
    • панельный
    2 700 000 Р
    Агент
    +7 (915) Показать номер
    Посмотреть контакты
    2-к кв. Брянская область, Брянск ул. Абашева, 2 (42.0 м) - Фото 1
    2-к кв. Брянская область, Брянск ул. Абашева, 2 (42.0 м) - Фото 2
    2-комнатная квартира, общая площадь 42м², жилая 28м², кухня 6м²

    Продается 2х -комнатная квартира по ул. Абашева 2. Кирпичный дом. Kвapтиpа не угловaя, расспашенка на две стороны. В шаговой доступности остановки общественного транспорта, школы, детский сад, детская больница, магазины. Хорошее состояние,...
    • 42 м²
    • 2-ком
    • 2/5 эт.
    • кирпичный
    2 700 000 Р
    Агент
    +7 (910) Показать номер
    Посмотреть контакты
    2-к кв. Брянская область, Брянск Московский просп., 81/2 (43.0 м) - Фото 1
    2-к кв. Брянская область, Брянск Московский просп., 81/2 (43.0 м) - Фото 2
    2-комнатная квартира, общая площадь 43м², жилая 24м², кухня 9м²

    ПРОДАЕТСЯ 2-КОМНАТНАЯ КВАРТИРА в центре Фокинского района по адресу: пр-кт Московский, дом 81/2 (ост. Менжинского)Квартира, общей площадью 43/24/9 кв.м., расположена на 9 этаже 9-этажного кирпичного дома. Горячая вода, не угловая, с/у совмещён, лоджия...
    • 43 м²
    • 2-ком
    • 9/9 эт.
    2 550 000 Р
    Агент
    +7 (980) Показать номер
    Посмотреть контакты

    Не нашли подходящего объявления?

    Оставьте заявку, и наши риэлторы подберут квартиру в районе Брянска

    (0)