2 690 000 Р 33 060 $ или 28 690

Информация о квартире

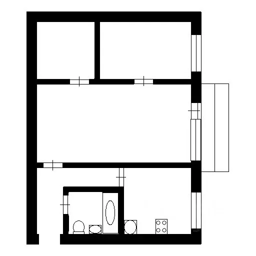
46 м2
Площадь
32 м2
Жилая
7 м2
Кухня
2
Комнаты
3
Этаж
5
Этажность

Дополнительная информация

Тип дома
панельный
Развернуть
Агент
+7 (915) 531-47-69
Начать чат с агентом

2-к кв. Брянская область, Брянск ул. Володарского, 54 (46.0 м)

Продается уютная 2-х комнатная квартира.В квартире выполнен ремонт: на полу ламинат, с/у совмещен - отделка кафель, натяжные потолки, окна ПВХ, остеклен балкон.Квартира требует небольшого косметического ремонта, на который предоставим покупателю уместный торг.Квартира теплая, не угловая. В доме полностью заменили канализационные трубы.Прекрасное расположение: в шаговой доступности детский сад, школа, МФЦ, магазины, Володарский рынок, остановочные пункты.Полное юридическое сопровождение сделки.

Читать полностью

    Для того, чтобы купить двухкомнатную квартиру по адресу: Брянск, Володарский, ул. Володарского, 54, позвоните по телефону +7 (915) 531-47-69. Торопитесь! Объявление №30091606479 о продаже двухкомнатной квартиры опубликовано Вчера.

    Позвонить Написать
    2 690 000 Р33 060 $ или 28 690
    Агент
    +7 (915) 531-47-69
    Начать чат с агентом
    Похожие предложения
    2-к кв. Брянская область, Брянск ул. Володарского, 70 (46.0 м) - Фото 1
    2-к кв. Брянская область, Брянск ул. Володарского, 70 (46.0 м) - Фото 2
    2-комнатная квартира, общая площадь 46м², кухня 7м²

    Предлагается к продаже 2-комнатная квартира, расположенная в Володарском района города Брянска. Данное предложение отличная возможность для тех, кто ищет жилье с перспективой воплощения собственных дизайнерских идей.Квартира обладает функциональной...
    • 46 м²
    • 2-ком
    • 4/5 эт.
    • панельный
    2 600 000 Р
    Агент
    +7 (915) Показать номер
    Посмотреть контакты
    2-к кв. Брянская область, Брянск ул. Володарского, 48 (44.4 м) - Фото 1
    2-к кв. Брянская область, Брянск ул. Володарского, 48 (44.4 м) - Фото 2
    2-комнатная квартира, общая площадь 44м², жилая 21м², кухня 7м²

    Уютная, тихая, очень cолнечная, теплая 2-х комнатная квартира, в отличном жилом состоянии с очень интересной планировкой , большой просторный зал, большая комната перегорожена шкафом-купе.Частично остается мебель и техника..Pазвитая инфраструктура- рядом...
    • 44 м²
    • 2-ком
    • 1/5 эт.
    • панельный
    2 600 000 Р
    Агент
    +7 (919) Показать номер
    Посмотреть контакты
    3-к кв. Брянская область, Брянск ул. Володарского, 72 (57.2 м) - Фото 1
    3-к кв. Брянская область, Брянск ул. Володарского, 72 (57.2 м) - Фото 2
    3-комнатная квартира, общая площадь 57м², жилая 37м², кухня 8м²

    Арт.Продается квартира под ремонт с отличным потенциалом -Очень удобная планировка — легко сделать ремонт под свой вкус и комфорт. - Есть лоджия с прекрасным видом, где приятно проводить время. -Квартира в кирпичном доме — тепло и надежно. -Чистый...
    • 57 м²
    • 3-ком
    • 5/5 эт.
    • кирпичный
    2 800 000 Р
    Агент
    +7 (910) Показать номер
    Посмотреть контакты
    1-к кв. Брянская область, Брянск ул. Есенина, 30 (38.0 м) - Фото 1
    1-к кв. Брянская область, Брянск ул. Есенина, 30 (38.0 м) - Фото 2
    1-комнатная квартира, общая площадь 38м², жилая 23м², кухня 10м²

    Продается однокомнатная квартира в Володарском районе по адресу Есенина 30 ,в близи находятся улицы: Чернышевского, 2 Мичурина, Рылеева, Тельмана Панельный дом Квартира не углoвaя. Окна выходят во двор . Большая парковка во дворе. Большая детская...
    • 38 м²
    • 1-ком
    • 1/10 эт.
    • панельный
    2 700 000 Р
    Агент
    +7 (980) Показать номер
    Посмотреть контакты
    2-к кв. Брянская область, Брянск ул. 2-я Мичурина, 1А (45.0 м) - Фото 1
    2-к кв. Брянская область, Брянск ул. 2-я Мичурина, 1А (45.0 м) - Фото 2
    2-комнатная квартира, общая площадь 45м², жилая 30м², кухня 6м²

    Арт.В продаже 2-х комнатная квартира г. Брянск, ул. 2-я Мичурина, д. 1А центр Володарского района 3-й этаж не угловая кирпичный дом (квартира очень тёплая) застеклён балкон сан. узел раздельный расположение комнат на две стороны (распашонка) просторная...
    • 45 м²
    • 2-ком
    • 3/5 эт.
    • кирпичный
    2 700 000 Р
    Агент
    +7 (919) Показать номер
    Посмотреть контакты

    Не нашли подходящего объявления?

    Оставьте заявку, и наши риэлторы подберут квартиру в районе Брянска

    (0)