6 450 000 Р 79 650 $ или 68 190

Информация о квартире

67 м2
Площадь
40 м2
Жилая
18 м2
Кухня
2
Комнаты
7
Этаж
9
Этажность
Развернуть
Агент
+7 (910) 580-38-35
Начать чат с агентом

2-к кв. Брянская область, Брянск Красноармейская ул., 119 (67.0 м)

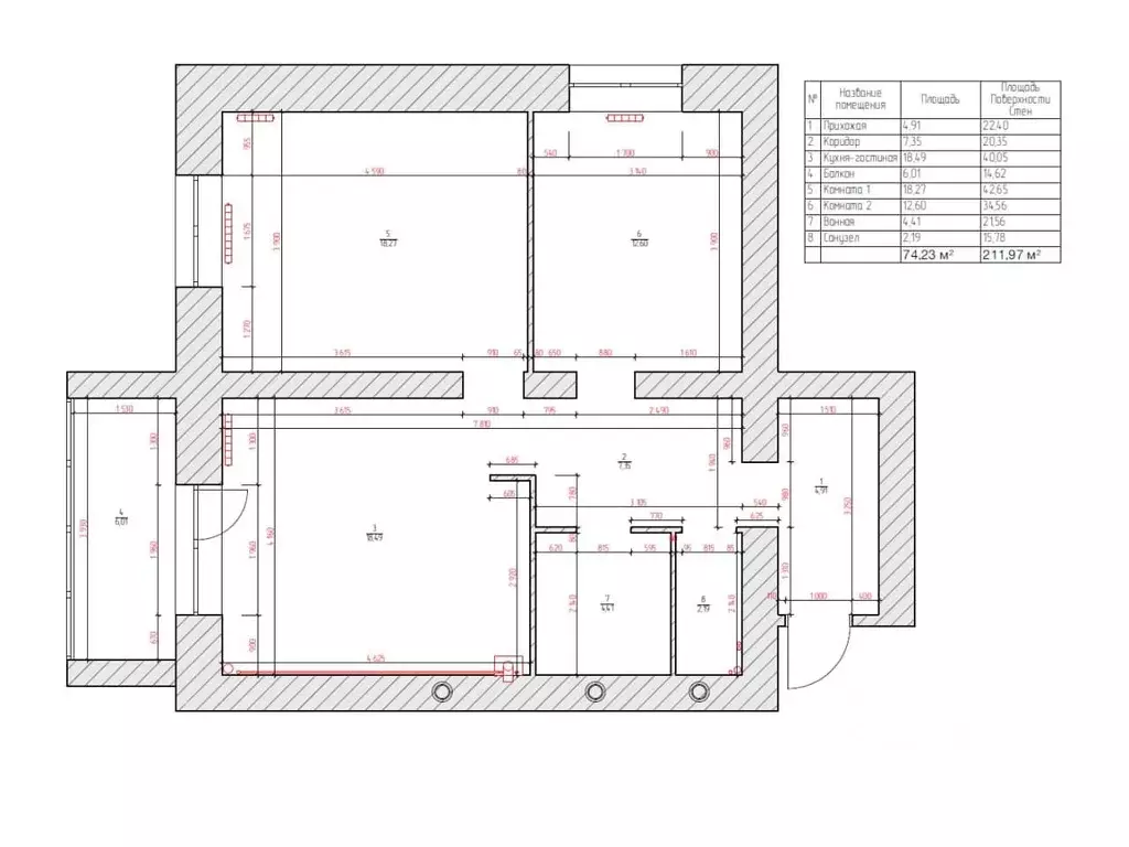
Продается просторная 2-комнатная квартира в центре Советского района Брянска, по ул. Красноармейская, д. 119. Общая площадь с учетом лоджии — 74.23 кв. м, жилая площадь — 38 кв. м, кухня -гостиная — 18.5 кв. м. Квартира расположена на 7 этаже 9-этажного дома. Высота потолков — 2.9 метра. Отличный вариант для тех, кто ищет комфортное жилье.В квартире две отдельные комнаты и просторная кухня-гостиная, где можно комфортно разместить обеденную зону. Отсутствие ремонта позволяет воплотить ваши дизайнерские идеи в жизнь. Окна выходят на улицу, поэтому много естественного света. В квартире два санузла, что очень удобно для семьи, а лоджия станет отличным местом для отдыха.Дом в хорошем состоянии, поддерживается чистота и порядок. На первом этаже предусмотрена большая колясочная с санузлом. В доме сквозной выход на две стороны придомовой территории. Функциональный лифт на две стороны подъезда с выходом на нулевой и первый этаж. Ближайшие остановки общественного транспорта находятся в шаговой доступности, что позволяет быстро добраться до центра города. Во дворе предусмотрены парковочные места для жильцов, что избавляет от необходимости искать парковку на улице.Район прекрасно развит: рядом есть школы, детские сады и магазины, супермаркет Линия, что делает квартиру особенно привлекательной для семей с детьми. Все необходимое для комфортной жизни — под рукой.Квартиру можно купить в ипотеку. Все документы готовы к сделке, что ускорит процесс оформления. Приглашаем вас на просмотр в удобное для вас время. Свяжитесь с нами, чтобы договориться о визите и получить дополнительную информацию.

Читать полностью

    Для того, чтобы купить двухкомнатную квартиру по адресу: Брянск, Советский, ул. Красноармейская, 119, позвоните по телефону +7 (910) 580-38-35. Торопитесь! Объявление №30091112515 о продаже двухкомнатной квартиры опубликовано 17 октября 2025.

    Позвонить Написать
    6 450 000 Р79 650 $ или 68 190
    Агент
    +7 (910) 580-38-35
    Начать чат с агентом
    Похожие предложения
    2-к кв. Брянская область, Брянск Красноармейская ул., 121 (66.6 м) - Фото 1
    2-к кв. Брянская область, Брянск Красноармейская ул., 121 (66.6 м) - Фото 2
    2-комнатная квартира, общая площадь 66м², кухня 20м²

    Предлагается к продаже великолепная двухкомнатная квартира в строительной отделке площадью 66,6 кв. м. в престижном жилом комплексе Самолёт по улице Красноармейской, 121. Расположенная в центре Советского района, эта квартира станет идеальным выбором...
    • 66 м²
    • 2-ком
    • 7/9 эт.
    • кирпичный
    6 400 000 Р
    Агент
    +7 (910) Показать номер
    Посмотреть контакты
    1-к кв. Брянская область, Брянск ул. Горбатова, 18 (39.8 м) - Фото 1
    1-к кв. Брянская область, Брянск ул. Горбатова, 18 (39.8 м) - Фото 2
    1-комнатная квартира, общая площадь 39м², жилая 17м², кухня 13м²

    Продается 1 комн. квартира в динамично-развивающемся районе, в ЖК АРТ-СИТИ по ул. Горбатова 18. Общая площадь - 39.8 м2, жилая-17.1 м2, кухня - 13.5 м2. Квартира расположена на 16 этаже, откуда открывается прекрасный вид на город. Дом монолитно-кирпичный,...
    • 39 м²
    • 1-ком
    • 16/16 эт.
    6 450 000 Р
    Агент
    +7 (910) Показать номер
    Посмотреть контакты
    2-к кв. Брянская область, Брянск ул. Горбатова, 45 (68.0 м) - Фото 1
    2-к кв. Брянская область, Брянск ул. Горбатова, 45 (68.0 м) - Фото 2
    2-комнатная квартира, общая площадь 68м², жилая 36м², кухня 12м²

    ???? Оформление 0 ???? Полное сопровождение сделки без переплат только чистая продажаПродается дом на Горбатова - идеальное место для тех, кто ищет комфорт большого города в окружении природы. ???? Зелёный оазис Парка 1000 летия, развитая инфраструктура...
    • 68 м²
    • 2-ком
    • 16/17 эт.
    • кирпичный
    6 600 000 Р
    Агент
    +7 (910) Показать номер
    Посмотреть контакты
    2-к кв. Брянская область, Брянск ул. Горбатова, 45 (67.0 м) - Фото 1
    2-к кв. Брянская область, Брянск ул. Горбатова, 45 (67.0 м) - Фото 2
    2-комнатная квартира, общая площадь 67м², жилая 36м², кухня 12м²

    ???? Оформление 0 ???? Полное сопровождение сделки без переплат только чистая продажаПродается дом на Горбатова - идеальное место для тех, кто ищет комфорт большого города в окружении природы. ???? Зелёный оазис Парка 1000 летия, развитая инфраструктура...
    • 67 м²
    • 2-ком
    • 2/16 эт.
    • кирпичный
    6 532 500 Р
    Агент
    +7 (910) Показать номер
    Посмотреть контакты
    2-к кв. Брянская область, Брянск Степная ул., 12 (58.2 м) - Фото 1
    2-к кв. Брянская область, Брянск Степная ул., 12 (58.2 м) - Фото 2
    2-комнатная квартира, общая площадь 58м², жилая 31м², кухня 13м²

    Арт.В центре Советского района продаётся современная двухкомнатная квартира по адресу: улица Степная дом 12.Квартира видовая, находится на четырнадцатом этаже кирпичного дома 2012 года постройки, окна выходят в тихий двор. Дом очень теплый, это...
    • 58 м²
    • 2-ком
    • 14/14 эт.
    • кирпичный
    6 500 000 Р
    Агент
    +7 (910) Показать номер
    Посмотреть контакты

    Не нашли подходящего объявления?

    Оставьте заявку, и наши риэлторы подберут квартиру в районе Брянска

    (0)