2 780 000 Р 33 930 $ или 29 060

Информация о квартире

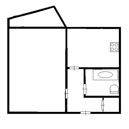
37 м2
Площадь
19 м2
Жилая
9 м2
Кухня
1
Комната
1
Этаж
9
Этажность

Дополнительная информация

Тип дома
панельный
Развернуть
Агент
Мария Провоторова
+7 (910) 230-94-78
Начать чат с агентом

1-к кв. Брянская область, Брянск ул. Брянского Фронта, 18 (37.0 м)

Продается уютная однокомнатная квартира площадью 37 кв. м на первом этаже девятиэтажного панельного дома 1986 года постройки. Жилая площадь составляет 19 кв. м, а кухня — 9.2 кв. м. Окна выходят во двор, что обеспечивает тишину и спокойствие. Имеется один совмещенный санузел и балкон для вашего удобства.В квартире выполнен косметический ремонт. Просторная кухня позволяет разместить все необходимое для приготовления пищи. Жилая комната светлая и уютная, что создает атмосферу комфорта и уюта. Санузел чистый и аккуратный.Дом в хорошем состоянии, оснащен пассажирским лифтом и мусоропроводом, что делает вашу жизнь в нем более удобной. Наземная парковка позволит вам без проблем найти место для автомобиля.Район имеет развитую инфраструктуру. В шаговой доступности находятся школы и детские сады, что удобно для семей с детьми. Рядом расположены разнообразные магазины, где вы сможете приобрести все необходимое. Хорошая транспортная доступность: до ближайших остановок общественного транспорта можно дойти за несколько минут.Условия сделки: продажа квартиры. Чистая юридическая история, квартира без обременений. Подходит под ипотеку, документы готовы к сделке. Приглашаем вас на просмотр этой замечательной квартиры Записывайтесь, чтобы лично оценить все ее преимущества.

Читать полностью

    Для того, чтобы купить однокомнатную квартиру по адресу: Брянск, Советский, ул. Брянского Фронта, 18, позвоните по телефону +7 (910) 230-94-78. Торопитесь! Объявление №30090865125 о продаже однокомнатной квартиры опубликовано Вчера.

    Позвонить Написать
    2 780 000 Р33 930 $ или 29 060
    Агент
    Мария Провоторова
    +7 (910) 230-94-78
    Начать чат с агентом
    Похожие предложения
    1-к кв. Брянская область, Брянск ул. Брянского Фронта, 18 (35.3 м) - Фото 1
    1-к кв. Брянская область, Брянск ул. Брянского Фронта, 18 (35.3 м) - Фото 2
    1-комнатная квартира, общая площадь 35м², жилая 16м², кухня 10м²

    Продаётся светлая, уютная однокомнатная квартира в спокойном и экологически чистом уголке Советского района - 5-й микрорайон . Тёплый, панельный дом с кирпичной вставкой. Квартира не угловая. Просторная комната - 16 кв.м; кухня - 10,5 кв.м; вместительная...
    • 35 м²
    • 1-ком
    • 9/9 эт.
    • кирпичный
    2 800 000 Р
    Агент
    +7 (919) Показать номер
    Посмотреть контакты
    1-к кв. Брянская область, Брянск ул. Фокина, 68 (31.3 м) - Фото 1
    1-к кв. Брянская область, Брянск ул. Фокина, 68 (31.3 м) - Фото 2
    1-комнатная квартира, общая площадь 31м², жилая 17м², кухня 5м²

    Код объекта: 810104. Продается уютная 1 ком. квартира в центре Советского района Характеристики дома:Год постройки: 1969.Материал стен: кирпичный.Характеристики квартиры:Общая площадь: 31,3 кв.м.Жилая площадь: 17,5 кв.м.Кухня: 5,9 кв.м.С/у: 2,8 кв.м.,...
    • 31 м²
    • 1-ком
    • 4/5 эт.
    • кирпичный
    2 750 000 Р
    Агент
    +7 (915) Показать номер
    Посмотреть контакты
    1-к кв. Брянская область, Брянск просп. Ленина, 12 (31.8 м) - Фото 1
    1-к кв. Брянская область, Брянск просп. Ленина, 12 (31.8 м) - Фото 2
    1-комнатная квартира, общая площадь 31м², жилая 18м², кухня 5м²

    Арт.. Квартира мечты в сердце города ждет вас Предлагается к продаже уютная и светлая 1-комнатная квартира в историческом центре, расположенная по адресу: проспект Ленина, 12. Идеальный вариант для тех, кто ценит комфорт, удобство и динамичную городскую...
    • 31 м²
    • 1-ком
    • 4/5 эт.
    • кирпичный
    2 850 000 Р
    Агент
    +7 (910) Показать номер
    Посмотреть контакты
    3-к кв. Брянская область, Брянск ул. Фокина, 1 (58.0 м) - Фото 1
    3-к кв. Брянская область, Брянск ул. Фокина, 1 (58.0 м) - Фото 2
    3-комнатная квартира, общая площадь 58м², жилая 43м², кухня 10м²

    В продаже 3-квартира, отдельная секция (три изолированные комнаты в общежитии), своя кухня, свой совместный с/у (ванна, туалет).В комнатах сделан евроремонт, отличное жилое состояние, окна Пвх, натяжные потолки, установлен бойлер.Комнаты: 14.1 кв. М.,...
    • 58 м²
    • 3-ком
    • 2/2 эт.
    • блочный
    2 700 000 Р
    Агент
    +7 (919) Показать номер
    Посмотреть контакты
    1-к кв. Брянская область, Брянск ул. Дуки, 35 (32.0 м) - Фото 1
    1-к кв. Брянская область, Брянск ул. Дуки, 35 (32.0 м) - Фото 2
    1-комнатная квартира, общая площадь 32м², жилая 16м², кухня 6м²

    Арт.Продается квартира в Советском районе по адресу: ул. Дуки, 35 Состояние квартиры:- Свежий дизайнерский ремонт, не требующий вложений. - Вся мебель и техника остаются новым собственникам Окружение:- Рядом находиться Курган Бессмертия, что привносит...
    • 32 м²
    • 1-ком
    • 3/5 эт.
    • кирпичный
    2 800 000 Р
    Агент
    +7 (980) Показать номер
    Посмотреть контакты

    Не нашли подходящего объявления?

    Оставьте заявку, и наши риэлторы подберут квартиру в районе Брянска

    (0)