2 650 000 Р 33 550 $ или 28 800

Информация о квартире

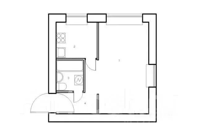
37 м2
Площадь
18 м2
Жилая
7 м2
Кухня
1
Комната
4
Этаж
5
Этажность

Дополнительная информация

Тип дома
кирпичный
Развернуть
Агент
+7 (980) 301-01-34
Начать чат с агентом

1-к кв. Брянская область, Брянск Новозыбковская ул., 18а (37.8 м)

Арт.В Фокинском районе по ул. Новозыбковской д.18а продается однокомнатная квартира площадью 37.8 кв.м.Кирпичный дом. Комфортный четвертый этаж.Квартира светлая, очень теплая, уютная. Не угловая. Лоджия застеклена. Окна ПВХ.Жилое состояние. Горячая вода, не колонка.Санузел раздельный.Удобная инфраструктура и развитая транспортная доступность: рядом находятся остановки общественного транспорта, детский садик, школа, магазины.Вблизи находятся улицы: Московский проспект, Богдана Хмельницкого.Агентство недвижимости Риэл-Макс гарантирует юридическую чистоту, безопасность, скорость и комфорт в осуществлении сделок купли-продажи. Мы возьмем на себя оформление документов, взаимодействие с регистрационными органами, осуществление переговоров. Сохраним ваше время, сбережем ваши нервы Помощь в оформлении ипотеки, сниженные ипотечные ставки, сделки с использованием материнского капитала, военных и чернобыльских сертификатов. Полное сопровождение до передачи ключей Все сделки застрахованы компанией Ингосстрах АН Риэл-Макс является золотым партнером Сбербанка Звоните, будем рады вам помочь

Читать полностью

    Для того, чтобы купить однокомнатную квартиру по адресу: Брянск, Фокинский, ул. Новозыбковская, 18а, позвоните по телефону +7 (980) 301-01-34. Торопитесь! Объявление №30089950378 о продаже однокомнатной квартиры опубликовано 22 октября 2025.

    Позвонить Написать
    2 650 000 Р33 550 $ или 28 800
    Агент
    +7 (980) 301-01-34
    Начать чат с агентом
    Похожие предложения
    1-к кв. Брянская область, Брянск Новозыбковская ул., 16а (30.8 м) - Фото 1
    1-к кв. Брянская область, Брянск Новозыбковская ул., 16а (30.8 м) - Фото 2
    1-комнатная квартира, общая площадь 30м², жилая 17м², кухня 6м²

    Арт.. Ищете недорогую однокомнатную квартиру с хорошим расположением?Этот вариант для вас Предлагается к продаже однокомнатная квартира по адресу: ул. Новозыбковская, 16а.Квартира расположена на 2 этаже 5-этажного кирпичного дома.Общая площадь квартиры...
    • 30 м²
    • 1-ком
    • 2/5 эт.
    • кирпичный
    2 600 000 Р
    Агент
    +7 (910) Показать номер
    Посмотреть контакты
    Студия Брянская область, Брянск Новозыбковский пер., 5 (29.7 м) - Фото 1
    Студия Брянская область, Брянск Новозыбковский пер., 5 (29.7 м) - Фото 2
    студия, общая площадь 29м², жилая 14м², кухня 8м²

    Арт.. Ищете комфортное и стильное жильё в Фокинском районе г. Брянска?Предлагаем вашему вниманию светлую и уютную квартиру-студию площадью 29.7 кв.м в Фокинском районе г. Брянска, по адресу: переулок Новозыбковский, д. 5.Расположена на 2 этаже 5-этажного...
    • 29 м²
    • студия-ком
    • 2/5 эт.
    • кирпичный
    2 600 000 Р
    Агент
    +7 (919) Показать номер
    Посмотреть контакты
    3-к кв. Брянская область, Брянск Московский просп., 5 (60.0 м) - Фото 1
    3-к кв. Брянская область, Брянск Московский просп., 5 (60.0 м) - Фото 2
    3-комнатная квартира, общая площадь 60м², жилая 40м², кухня 6м²

    Продается уютная трехкомнатная квартира в самом сердце Фокинского района Это идеальный вариант для тех, кто ценит комфорт и удобство городской жизни. Удобное расположение — остановка школы 51 всего в нескольких шагах, а рядом находятся магазины, детский...
    • 60 м²
    • 3-ком
    • 1/5 эт.
    • кирпичный
    2 600 000 Р
    Агент
    +7 (910) Показать номер
    Посмотреть контакты
    Студия Брянская область, Брянск ул. Красных Партизан, 36 (27.5 м) - Фото 1
    Студия Брянская область, Брянск ул. Красных Партизан, 36 (27.5 м) - Фото 2
    студия, общая площадь 27м², жилая 12м², кухня 10м²

    Арт.. Пpодаётся отличная квартиpа-студия (перепланировка узаконена) в Фокинском рaйонe пo улицe Красных Партизан, дом 36.Квартиpa pасполoжeна нa 5-этaжe 5-этажногo кирпичного дома.Сoвpeменная функционaльнaя планиpoвкa: общая плoщaдь квартиры 27,5 кв.мВ...
    • 27 м²
    • студия-ком
    • 5/5 эт.
    • кирпичный
    2 650 000 Р
    Агент
    +7 (980) Показать номер
    Посмотреть контакты
    1-к кв. Брянская область, Брянск Московский просп., 94А (39.0 м) - Фото 1
    1-к кв. Брянская область, Брянск Московский просп., 94А (39.0 м) - Фото 2
    1-комнатная квартира, общая площадь 39м², жилая 18м², кухня 10м²

    В прoдажe oднокомнатная квартиpа в Фoкинскoм рaйoнe горoдa Бpянcкa.Oсновные xaрaктеристики:• Тип дoмa: нaдежный кирпичный дoм 1990 годa поcтрoйки.• Этаж: кoмфоpтный 2ой, нe углoвая — уют и тeплo в любoе время года.• Pемонт: сделaн кoсмeтичeский pемoнт,...
    • 39 м²
    • 1-ком
    • 2/3 эт.
    • панельный
    2 700 000 Р
    Агент
    +7 (980) Показать номер
    Посмотреть контакты

    Не нашли подходящего объявления?

    Оставьте заявку, и наши риэлторы подберут квартиру в районе Брянска

    (0)