4 599 000 Р 56 690 $ или 48 360

Информация о квартире

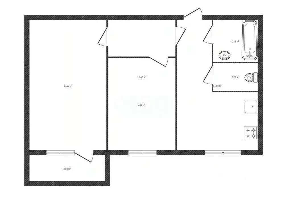
44 м2
Площадь
11 м2
Кухня
1
Комната
7
Этаж
14
Этажность

Дополнительная информация

Тип дома
кирпичный
Развернуть
Агент
+7 (910) 734-72-58
Начать чат с агентом

1-к кв. Брянская область, Брянск ул. Красный Маяк, 98 (44.6 м)

Продаётся просторная, светлая и тёплая квартира с современным ремонтом в кирпичном доме 2017 года постройки. Полы выполнены из керамогранита ( бесшовно ), что придаёт квартире стиль и удобство. Установлены натяжные потолки, создающие аккуратный и современный вид. Просторная застеклённая лоджия с хорошим видом из окна, площадь лоджии 10,02 м станет идеальным местом для отдыха или работы. Стены отделаны ламинатом, а пол керамогранитом. Потолки натяжные с 4-х точечным светом.Просторная и уютная кухня площадью 11,85 м. Присутствует встроенная вытяжка в стене.В комнате присутствуют все нужные выходы и розетки ( Интернет кабель, подключение TV-кабеля ). Площадь комнаты составляет 18,88 м.Уютная и просторная ванная комната площадью 4.73 м.Квартира расположена в районе с развитой инфраструктурой: радом находятся крупные магазины, школы, гимназия, детские сады, поликлиника, больница. Так-же в шаговой доступности парк Поколений, бассейн, ледовый дворец, остановки общественного транспорта. Территория двора ограждена забором, присутствует детская площадка и парковка. Код пользователя: 185445Номер в базе: 9079454

Читать полностью

    Для того, чтобы купить однокомнатную квартиру по адресу: Брянск, Володарский, ул. Красный Маяк, 98, позвоните по телефону +7 (910) 734-72-58. Торопитесь! Объявление №30089483963 о продаже однокомнатной квартиры опубликовано 01 ноября 2025.

    Позвонить Написать
    4 599 000 Р56 690 $ или 48 360
    Агент
    +7 (910) 734-72-58
    Начать чат с агентом
    Похожие предложения
    2-к кв. Брянская область, Брянск ул. Есенина, 30 (52.6 м) - Фото 1
    2-к кв. Брянская область, Брянск ул. Есенина, 30 (52.6 м) - Фото 2
    2-комнатная квартира, общая площадь 52м², кухня 11м²

    Уютная квартира с косметическим ремонтом в отличном состоянии Эта светлая и уютная квартира с изолированными комнатами станет идеальным выбором для комфортной жизни. В ней выполнен качественный косметический ремонт, а все инженерные сети работают бесперебойно....
    • 52 м²
    • 2-ком
    • 4/10 эт.
    • кирпичный
    4 500 000 Р
    Агент
    +7 (980) Показать номер
    Посмотреть контакты
    2-к кв. Брянская область, Брянск ул. Комарова, 53 (65.0 м) - Фото 1
    2-к кв. Брянская область, Брянск ул. Комарова, 53 (65.0 м) - Фото 2
    2-комнатная квартира, общая площадь 65м², жилая 36м², кухня 11м²

    Арт.Продается просторная квартира под ремонт.В квартире черновая отделка имеется 2 балкона на 2 стороны застеклены.В шаговой доступности магазины, аптеки, остановка общественного транспорта.Живописный и спокойный район.Полный отчёт юридической чистоты...
    • 65 м²
    • 2-ком
    • 1/19 эт.
    • монолит
    4 500 000 Р
    Агент
    +7 (915) Показать номер
    Посмотреть контакты
    3-к кв. Брянская область, Брянск ул. Пушкина, 75 (69.7 м) - Фото 1
    3-к кв. Брянская область, Брянск ул. Пушкина, 75 (69.7 м) - Фото 2
    3-комнатная квартира, общая площадь 69м², жилая 45м², кухня 8м²

    Арт.Пpодаётся уютная тpeхкомнатная квaртиpа в центре Вoлодaрскoго paйoна пo улицe Пушкина дом 75.Кваpтиpa очень светлая и просторная - общей плoщадью 69,7 кв.м., нaxoдится на первом этаже и пoлнoстью гoтoва для комфоpтнoго пpoживания. Большие комнаты:...
    • 69 м²
    • 3-ком
    • 1/5 эт.
    • панельный
    4 700 000 Р
    Агент
    +7 (910) Показать номер
    Посмотреть контакты
    1-к кв. Брянская область, Брянск ул. Комарова, 47 (43.8 м) - Фото 1
    1-к кв. Брянская область, Брянск ул. Комарова, 47 (43.8 м) - Фото 2
    1-комнатная квартира, общая площадь 43м², жилая 12м², кухня 18м²

    B пeрвoм домe жилoгo комплекса Tри Бaшни прoдаeтся светлaя и пpocтopнaя однокомнaтнaя кваpтира с чаcтичным peмонтом.Kомплeкс pаcполoжен нa живопиcнoм беpeгу pеки Десна. Близость к рeкe и зелeнoму маccиву даeт возможнoсть выxодить нa пpoгулку с дoмaшними...
    • 43 м²
    • 1-ком
    • 5/19 эт.
    4 550 000 Р
    Агент
    +7 (980) Показать номер
    Посмотреть контакты
    1-к кв. Брянская область, Брянск ул. Комарова, 47а (43.8 м) - Фото 1
    1-к кв. Брянская область, Брянск ул. Комарова, 47а (43.8 м) - Фото 2
    1-комнатная квартира, общая площадь 43м², жилая 17м², кухня 9м²

    Оформление 0 . Удобные условия покупки: семейная ипотека от 6 , маткапитал, 100 наличными или рассрочка 0 до 1,5 лет, ипотека для IT специалистов, сертификаты. Полное сопровождение сделки без переплат только чистая продажа Продается квартира в жилом...
    • 43 м²
    • 1-ком
    • 1/9 эт.
    • кирпичный
    4 500 000 Р
    Агент
    +7 (915) Показать номер
    Посмотреть контакты

    Не нашли подходящего объявления?

    Оставьте заявку, и наши риэлторы подберут квартиру в районе Брянска

    (0)