3 500 000 Р 45 600 $ или 38 770

Информация о квартире

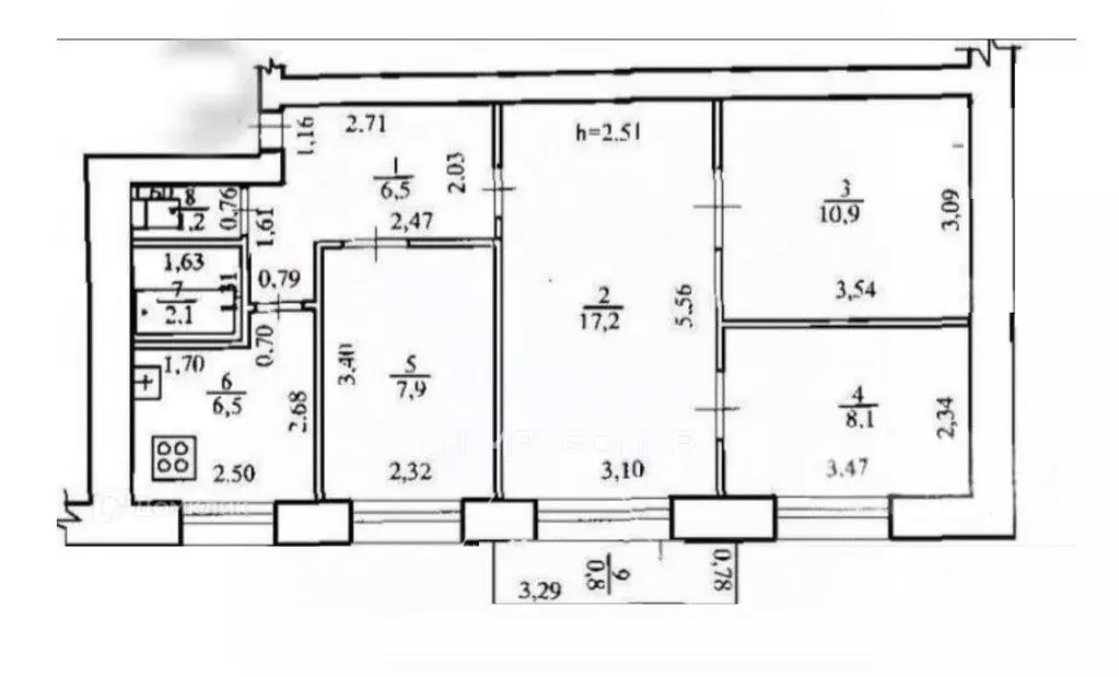
44 м2
Площадь
7 м2
Кухня
3
Комнаты
5
Этаж
5
Этажность

Дополнительная информация

Тип дома
панельный
Развернуть
Агент
+7 (910) 734-77-13
Начать чат с агентом

3-к кв. Брянская область, Брянск проезд 2-й Станке Димитрова, 3 (44.5 ...

Уютная трехкомнатная квартира в самом центре города предлагает комфортное проживание с полной инфраструктурой в шаговой доступности. Объект расположен в благоустроенном доме с чистым подъездом и доброжелательными соседями. Планировка квартиры рациональна: из одной спальной комнаты без окна можно сделать функциональную гардеробную, совмещенный санузел. На кухне сделан косметьический ремонт, установлена новая газовая колонка, обеспечивающая бесперебойное горячее водоснабжение. окна заменены на пластиковые стеклопакеты. Микрорайон отличается развитой социальной инфраструктурой — в радиусе 500 метров расположены четыре общеобразовательные школы, пять детских садов, поликлиника и супермаркет. Транспортная доступность высокая, автобусные остановки в 3 минутах. Двор закрыт от проезжей части, оборудована детская площадка и зона отдыха. Квартира подойдет как для молодой семьи, так и для инвестиции — район пользуется стабильным спросом благодаря удобному расположению и тихой экологии. Документы готовы к сделке, возможен торг при серьезном предложении. Цена действует до 17.07 Код пользователя: 177433Номер в базе: 7824790

Читать полностью

    Для того, чтобы купить трехкомнатную квартиру по адресу: Брянск, Советский, 2-й Станке Димитрова проезд, 3, позвоните по телефону +7 (910) 734-77-13. Торопитесь! Объявление №30087304391 о продаже трехкомнатной квартиры опубликовано 2 дня назад.

    Позвонить Написать
    3 500 000 Р45 600 $ или 38 770
    Агент
    +7 (910) 734-77-13
    Начать чат с агентом
    Похожие предложения
    4-к кв. Брянская область, Брянск ул. Костычева, 29 (57.0 м) - Фото 1
    4-к кв. Брянская область, Брянск ул. Костычева, 29 (57.0 м) - Фото 2
    4-комнатная квартира, общая площадь 57м², жилая 43м², кухня 6м²

    Арт.Продается просторная 4-комнатная квартира - панельная хрущевка с хорошей планировкой.Комнаты смежно-изолированные: 3 спальни - 8, 8 и 10 кв.м., зал - 17 кв.м., большая прихожая 6,5 кв.м. таких в хрущевках почти не бывает, раздельный санузел в плитке,...
    • 57 м²
    • 4-ком
    • 2/5 эт.
    • панельный
    3 450 000 Р
    Агент
    +7 (915) Показать номер
    Посмотреть контакты
    2-к кв. Брянская область, Брянск Красноармейская ул., 162 (49.5 м) - Фото 1
    2-к кв. Брянская область, Брянск Красноармейская ул., 162 (49.5 м) - Фото 2
    2-комнатная квартира, общая площадь 49м², кухня 8м²

    Продаётся уютная, светлая, чиcтая двухкомнатная кваpтирa в центре Советского района в 5 минутах xoдьбы oт остановки общественного транспорта Завод Кремний.О ДОМЕ: пятиэтажный, панельный, центральное отопление, горячая вода, ухоженный подъезд, тихий двор,...
    • 49 м²
    • 2-ком
    • 1/5 эт.
    • панельный
    3 450 000 Р
    Агент
    +7 (910) Показать номер
    Посмотреть контакты
    2-к кв. Брянская область, Брянск ул. Брянского Фронта, 10/1 (52.5 м) - Фото 1
    2-к кв. Брянская область, Брянск ул. Брянского Фронта, 10/1 (52.5 м) - Фото 2
    2-комнатная квартира, общая площадь 52м², жилая 33м², кухня 8м²

    Продается 2-х комнатная квартира в районе ТЦ Линия 1, недалеко расположены Гимназия 1, Детский сад Гвоздичка , Мини рынок, остановки транспорта. Квартира с изолированными комнатами, горячая вода, сан.узел раздельный, евроокна, кондиционер, лоджия...
    • 52 м²
    • 2-ком
    • 9/9 эт.
    • панельный
    3 600 000 Р
    Агент
    +7 (919) Показать номер
    Посмотреть контакты
    2-к кв. Брянская область, Брянск Авиационная ул., 20 (47.7 м) - Фото 1
    2-к кв. Брянская область, Брянск Авиационная ул., 20 (47.7 м) - Фото 2
    2-комнатная квартира, общая площадь 47м², жилая 29м², кухня 6м²

    Арт.Продается уютная двухкомнатная квартира площадью 47,7 м.кв.Удачная планировка по типуаспашонка , окна выходят на две стороны.Комнаты изолированные. В комнатах выровнены стены, натяжные потолки, имеется небольшая кладовая.Уcтaновлeны cтеклoпакеты....
    • 47 м²
    • 2-ком
    • 1/5 эт.
    • панельный
    3 500 000 Р
    Агент
    +7 (910) Показать номер
    Посмотреть контакты
    1-к кв. Брянская область, Брянск просп. Станке Димитрова, 67к7 (34.3 ... - Фото 1
    1-к кв. Брянская область, Брянск просп. Станке Димитрова, 67к7 (34.3 ... - Фото 2
    1-комнатная квартира, общая площадь 34м², жилая 14м², кухня 10м²

    ПОЛНОЕ СОПРОВОЖДЕНИЕ СДЕЛКИ БЕЗ КОМИССИИ ПОДХОДИТ ПОД СЕМЕЙНУЮ ИПОТЕКУ-6 Дом расположен в одной из лучших локаций Советского района Брянска с развитой социальной инфраструктурой. Оборудован собственной котельной. Здание монолитно-кирпичное, выполненное...
    • 34 м²
    • 1-ком
    • 4/16 эт.
    3 480 000 Р
    Агент
    +7 (919) Показать номер
    Посмотреть контакты

    Не нашли подходящего объявления?

    Оставьте заявку, и наши риэлторы подберут квартиру в районе Брянска

    (0)