10 800 000 Р 139 900 $ или 117 500

Информация о квартире

131 м2
Площадь
77 м2
Жилая
15 м2
Кухня
3
Комнаты
3
Этаж
9
Этажность

Дополнительная информация

Тип дома
кирпичный
Развернуть
Агент
+7 (919) 290-45-58
Начать чат с агентом

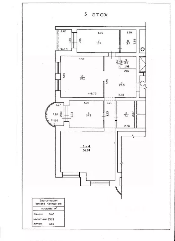
3-к кв. Брянская область, Брянск ул. Димитрова, 58 (131.3 м)

В продаже просторная 3-комнатная квартира площадью 131м2, расположенная на 3 этаже 9-ти этажного кирпичного дома 2004 г. постройки, в Володарском р-не г.Брянска. В квартире выполнен хороший ремонт из качественных материалов. Потолки- натяжные+гипсокартон. На стенах декор из натурального и искусственного камня, цветные стеклоблоки, натуральное пробковое покрытие. Комнаты светлые, просторные и очень теплые, две застекленные и достаточно большие лоджии(в одну вход из кухни, в другую из спальни), большая кладовая с возможностью использования под гардеробную. Два больших санузла, в одном из которых установлена большая гидромассажная ванная и душевая кабина. Закрытая огороженная территория, во дворе спортивная и игровая площадки, достаточно места для парковки, рядом платная стоянка. Развитая инфраструктура: в шаговой доступности - ж/д вокзал, детский сад, школа, парк отдыха, остановка общественного транспорта- возможность доехать в любой р-н города. Покупая с нами, вы получаете гарантию безопасности, юридическое сопровождение на всех этапах сделки. Мы являемся центром ипотечного кредитования, помогаем нашим клиентам с выбором оптимальной программы ипотечного кредитования на выгодных клиенту условиях. ЗАИНТЕРЕСОВАЛО ПРЕДЛОЖЕНИЕ ? ЗВОНИТЕ РАССКАЖУ ВСЕ ПОДРОБНО. Код пользователя: 120489Номер в базе: 3239018

Читать полностью

    Для того, чтобы купить трехкомнатную квартиру по адресу: Брянск, Володарский, ул. Димитрова, 58, позвоните по телефону +7 (919) 290-45-58. Торопитесь! Объявление №30080801085 о продаже трехкомнатной квартиры опубликовано 08 февраля 2026.

    Позвонить Написать
    10 800 000 Р139 900 $ или 117 500
    Агент
    +7 (919) 290-45-58
    Начать чат с агентом
    Похожие предложения
    3-к кв. Брянская область, Брянск ул. Димитрова, 58 (131.3 м) - Фото 1
    3-к кв. Брянская область, Брянск ул. Димитрова, 58 (131.3 м) - Фото 2
    3-комнатная квартира, общая площадь 131м², жилая 77м², кухня 15м²

    Арт.Вашему вниманию предлагаем эксклюзивную трех комнатную квартиру находящуюся в центре Володарскогоайона города Брянска. Отличное мeстоположeниe дoма с ближайшей транспортной развязкой во все районы города. Закрытая придомовая площадь с находящимися...
    • 131 м²
    • 3-ком
    • 3/9 эт.
    • кирпичный
    10 699 000 Р
    Агент
    +7 (980) Показать номер
    Посмотреть контакты
    3-к кв. Брянская область, Брянск ул. Комарова, 47 (90.8 м) - Фото 1
    3-к кв. Брянская область, Брянск ул. Комарова, 47 (90.8 м) - Фото 2
    3-комнатная квартира, общая площадь 90м², кухня 24м²

    Продается трехкомнатная квартира , качественная строительная отделка.Без дополнительных комиссий.Жилой комплекс Три башни расположен у самой воды, на первой линии и является главной архитектурной доминантой района. Месторасположение жилого дома является...
    • 90 м²
    • 3-ком
    • 16/20 эт.
    • монолит
    11 351 520 Р
    Агент
    +7 (980) Показать номер
    Посмотреть контакты
    3-к кв. Брянская область, Брянск ул. Комарова, 47 (82.0 м) - Фото 1
    3-к кв. Брянская область, Брянск ул. Комарова, 47 (82.0 м) - Фото 2
    3-комнатная квартира, общая площадь 82м², кухня 17м²

    Продается евротрешка с дизайнерским ремонтом на берегу реки Десна. Индивидуальное отопление, квартира с террасой 22 кв.м, вид на реку. В шаговой доступности: остановка общественного транспорта, железнодорожный вокзал, магазины, медицинские кабинеты,...
    • 82 м²
    • 3-ком
    • 1/9 эт.
    • кирпичный
    11 491 400 Р
    Агент
    +7 (980) Показать номер
    Посмотреть контакты
    3-к кв. Брянская область, Брянск ул. Имени А.Ф. Войстроченко, 3 (102.6 ... - Фото 1
    3-к кв. Брянская область, Брянск ул. Имени А.Ф. Войстроченко, 3 (102.6 ... - Фото 2
    3-комнатная квартира, общая площадь 102м², жилая 50м², кухня 24м²

    Арт.В продаже просторная 3-комнатная квартира евроформата по адресу : г. Брянск, ул. им. А.Ф. Войстроченко, д.3Параметры :Общая площадь -102.6 кв.м, кухня-гостиная 24.85 кв.м, комнаты 16.1+20.76+14.07 кв.мО квартире:Дом 2021 года постройкиУникальная ...
    • 102 м²
    • 3-ком
    • 8/14 эт.
    • кирпичный
    11 500 000 Р
    Агент
    +7 (910) Показать номер
    Посмотреть контакты
    2-к кв. Брянская область, Брянск ул. Имени О.С. Визнюка, 20 (65.0 м) - Фото 1
    2-к кв. Брянская область, Брянск ул. Имени О.С. Визнюка, 20 (65.0 м) - Фото 2
    2-комнатная квартира, общая площадь 65м², жилая 38м², кухня 20м²

    Продается современная евротрешка (2 комнаты + кухня гостиная) в ЖК Резиденция Грин Парк по ул. им. О.С. Визнюка дом 20 (р-н Старого аэропорта рядом с ул. Войстроченко, Строкина, Степная) Огороженная территория с прекрасной придомовой территорией с...
    • 65 м²
    • 2-ком
    • 2/10 эт.
    • кирпичный
    10 990 000 Р
    Агент
    +7 (919) Показать номер
    Посмотреть контакты

    Не нашли подходящего объявления?

    Оставьте заявку, и наши риэлторы подберут квартиру в районе Брянска

    (0)